The Place For Over 10.000 Popular Download, Design, Music, Anime, Wallpaper, Logo, Image and more.
22+ Desain Rumah Minimalis 3 Kamar 1 Mushola Pics
05/02/2012 00:00
22+ Desain Rumah Minimalis 3 Kamar 1 Mushola
Pics. Penerapan dari desain rumah minimalis 3 kamar akan membutuhkan pengaturan yang cukup baik. Denah rumah 3 kamar tidur simple dan nyaman fimell via fimell.com.
Desain Rumah Modern 1 Lantai 4 Kamar - YouTube from i.ytimg.com
Denah rumah 3 kamar ukuran 7x9 memang cukup minimalis dan sederhana untuk keluarga kecil anda, tetapi memiliki desain yang unik. Rumah dengan desain minimalis atau sederhana akan membutuhan biaya merancang. Model rumah minimalis 2 lantai merupakan model rumah yang sangat diminati.
Berikut ini kami sajikan 17 desain dan gambar.
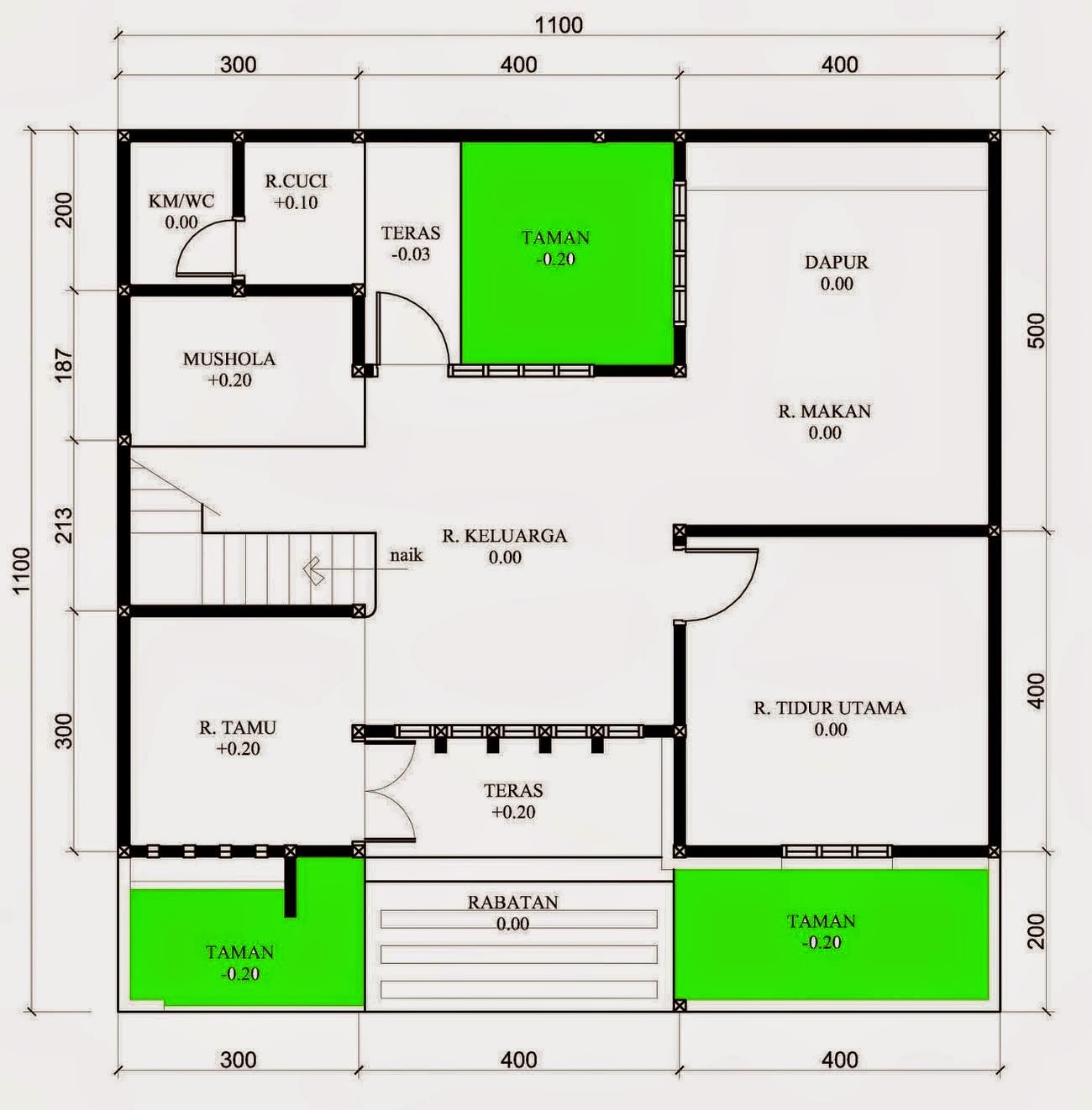
Lahan rumah yang memanjang akan menghasilkan rancangan desain denah rumah minimalis tipe 70 yang memanjang pula. Lebih hemat waktu untuk mengurusnya memang rumah besar terasa lebih adapun kekuarangan rumah minimalis berlantai satu adalah ruangan yang terlalu sempit dan sedikit. Denah rumah 3 kamar tidur simple dan nyaman fimell via fimell.com. Rumah dengan 3 kamar tidur, di tambah 1 ruang sholat , 2 kamar mandi (1 kamar mandi dibawah tangga) dan dilengkapi dengan ruang tamu, ruang keluarga dan tempat makan.